Overview
-
ID 30519
-
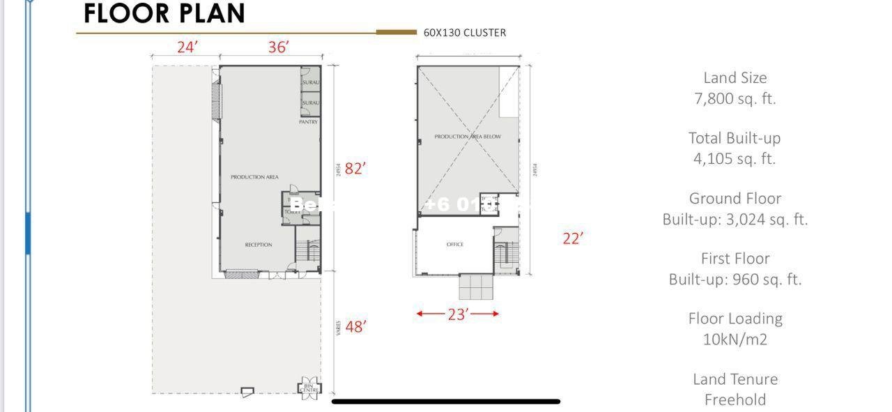
Size 5,500 SqFt
-
Land Size 5,500 SqFt
Address
Open on Google Maps-
Address Taman Perindustrian Ulu Pulai Gelang Patah
-
Province/State Johor
-
City/Town Gelang Patah, Johor
-
Neighborhood 81550 Johor, Gelang Patah, Kampung Pulai Jelutung, Malaysia
Details
-
Property ID 30519
-
Price MYR4,800
-
Property Type Light Industrial Factory
-
Property Status For Rent
-
Size 5,500 SqFt
-
Land area 5,500 SqFt
-
Cobroke Listing Direct Owner
Description
For Rent
De Hoff Park
Jalan Tembaga @ Taman Perindustrian Ulu Pulai
– 1.5 Cluster Factory
– Land size 5500sqft
– Intermediate lot
Rental RM 4800
For Viewing, Please Contact *Bella Chong*
+6010-3586 893
http://wa.me/60103586893
